-
-
-
88, Sector-10, PCNTDA Pune - 411026
88, Sector-10, PCNTDA Pune - 411026
Sonic Flare , Portable Flare ,Smokeless,low noise , low- Brightness Flares we supply . With Economic and Robust structures like Derrick,Guy-roped and Self supported . Designed specifically to suit local structural laws and emission laws. Clean Flare technology which we have achieved and refining it with our every installation.We specialize in Low calorific value gas Flaring such as Blast Furnace gas, producer gas and Mixed gases with or without continuous supporting pilots. Pilot gas saving is considerable for such Flares and recover Gas Flare installation cost within
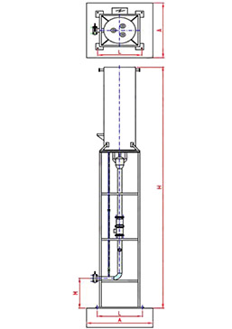
An efficient Burner and proper design of Enclosure can produced an efficient Enclosed flare and that is what we have achieved. Heavy Hydrocarbon also can be burnt efficiently in such an Enclosed Flare without external Blower for Combustion Air. Enclosed Flares are installed inside plants where an open Flame may be a deterrent for people living nearby or working around. Low noise, zero radiation, easy maintenance of components even without a major shutdown are some important features of such Enclosed flares.
Thermal Oxidizers are used toreduce or totally eliminate Air pollution from process Industries where emitted gases can carry substantial amount of polluting components in its stream. The challenge of Burning /combusting small percentage of pollutant in large flow of gases needs special treatment inside a Thermal Oxidizer. Both Recuperative and Direct Thermal Oxidizer we make depending upon clients requirement.If you have a Thermal Oxidizer already and need servicing/refurbish then we will do that with our experts.
Suitable for all biogas application High gas destruction rate making it ideal for CDM application Equipped with modern feedback and control system Can be easily coupled with flue analyzers Quick installation and dismantling Cost-effective Adhering to international norms and standards Ideal for water/effluent/sewage treatment plants. Landfill, livestock and form waste applications. Organic industries such as palm
We specialize in Low calorific value gas Burners, Burners are available for Blast Furnace gas, producer gas, mixed gas; Synthetic gas both Direct fired and Regenerative Burner. Biogas fired Boiler Burner can be supplied Ex-stock . We also produce special Burners for client including Incinerator Burner with large Heat Output. Refurbishing , start-up services for any make burner can be done with our team.
